Man & Co

020 8206 9930

Photo 6
Photo 3
Photo 5
Photo 6
Photo 7
Photo 8
Photo 9
Photo 10
Photo 11
Photo 12
Photo 13
Photo 14
Photo 15
Photo 4
Photo 5

Spacious 5-Bedroom Townhouse –Queensbury, Middlesex HA8

Situated in a sought-after residential area, this well-presented townhouse offers generous living space across three floors, ideal for families seeking comfort and convenience.

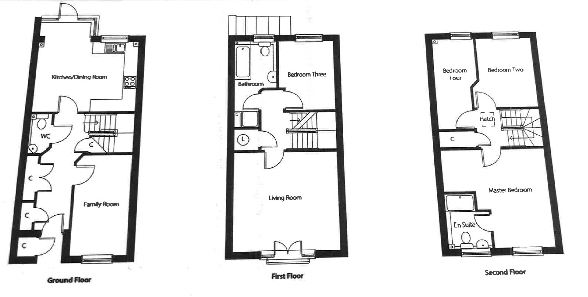
Ground Floor:

Open-plan kitchen and dining area with a fully fitted modern kitchen;

One well-sized bedroom;

Guest WC;

First Floor:

Bright and spacious living room;

Additional family room;

Family bathroom;

Second Floor:

Master bedroom with en-suite shower room;

Two further bedrooms;

Enjoy outdoor living in the private rear garden, perfect for relaxing or entertaining. Additional benefits include a two-car driveway and proximity to a wide range of local amenities, schools, and transport links.

This property combines space, style, and a prime location—making it an excellent choice for family living.

Arrange a Viewing

IMPORTANT NOTICE

Descriptions of the property are subjective and are used in good faith as an opinion and NOT as a statement of fact. Please make further specific enquires to ensure that our descriptions are likely to match any expectations you may have of the property. We have not tested any services, systems or appliances at this property. We strongly recommend that all the information we provide be verified by you on inspection, and by your Surveyor and Conveyancer.